Music City REALTORS HomeNashville TN Real Estate Home BuyersNashville TN Real Estate Home SellersAbout Music City Nashville Tennessee Contact Music City Realtors in Nashville TNAdd to FavoritesMusic City Realtors Mobile Real Estate Search                   Music City, REALTORS | 40 Burton Hills Blvd., Ste 200, Nashville, TN 37215 | 615.369.6633 | Lic.# 261558 | Site Map
- Enter a street#, street name, street address, subdivision, unit#, or MLS#

Welcome, Guest! | Search The MLS Now | SAVE Your Search 

Music City REALTORS HomeNashville TN Real Estate MLS Home BuyersNashville TN Real Estate MLS Home Sellers Relocate to Music City Nashville Tennessee Contact Music City Realtors in Nashville Tennessee Bookmark Music City Realtors Nashville TennesseeMusic City Realtors Mobile Real Estate Search

 

 

 

 

 

 

 
 

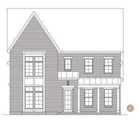
MLS# 2794864 - 4033 Kathie Dr in Fountain View Sec1 in Thompsons Station Tennessee 37179

 

 

 

 

Scan this QR Code with the barcode scanner app on your mobile phone!

 

Scan this QR Code for Mobile Viewing!

Property Features

  • 5 Bedrooms, 5 Full Baths
    (2 BR Main / 3 BR Second)
  • 4,258 Square Feet - Site Built
    (2,292 Main / 1,966 Second)
  • New 2-Story Built in 2025
    (Est. Completion Date: 2/28/2025 )
  • All Brick Exterior
  • 3-Car Garage - Attached - REAR
  • Lot Size: 65 X 138
  • Annual Property Taxes: $4,500
  • $150 Association Fee

 

Dream Finders Luxury Collection of Homes in Fountain View, Thompsons Station. This gorgeous home is move in ready and priced to sell. 3 Car Garage, 5 Bed- Primary and Guest Suite on 1st, 5 Bath, Back Covered Patio looking to open fields, 2 fireplaces, Vaulted Ceiling in Great Room, huge bonus room, and much more. Fountain View is Thompsons Station hottest Community. Enjoy walkability to retail, restaurants as well as resort style amenities.

 

Listing Company: Dream Finders Holdings, LLC

 


SOLD
 
in 2 Days
On 3/7/2025 For

$1,199,990

$281.82/sqft.

 

 

List Price
$1,199,990

$281.82/sqft.

Scan to Save my VCard!

 

Room Descriptions & Dimensions


Additional Details & Features

  • Flooring: Carpet, Laminate, Tile
  • 2 Fireplaces
  • Covered Patio, Covered Porch
  • Cooling: Central Air Cooling, Ceiling Fan(s)
  • Heating: Central Heat
  • City Water/Public Sewer
 

 

 

School Information

Heritage Elementary | Heritage Middle School | Independence High School

 

 

 

 

 
 

 

 

Realtracs logo
Provided Courtesy Of The RealTracs Solutions MLS Internet Data Exchange Program. Information Is Believed To Be Accurate But Not Guaranteed.
Copyright 2025 RealTracs Solutions. All Rights Reserved. Some or all of the listings may not belong to the firm whose website is being visited.

 

 

 

 

4033 Kathie Dr in Fountain View Sec1, Thompsons Station, TN 37179

MLS#2794864 - Williamson County | Return to SOLD Results