




Music City, REALTORS | 40 Burton Hills Blvd., Ste 200, Nashville, TN 37215 | 615.369.6633 | Lic.# 261558 | Site Map

|
Welcome, Guest! | Search The MLS Now | SAVE Your Search |
|
|
|
|
|
|
|
| ||||
|
Scan this QR Code for Mobile Viewing!
|
Property Features
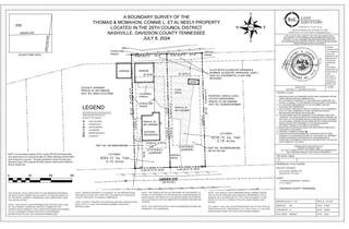
This transaction is for 5618 and 5620 Obrien Ave each lot is a 50x161 with alley access both lots are approved for 2 HPRS, there is a house there that needs to be tore down DO Not Enter The House Great building location , min to downtown Nashville and Green Hills. Buyers and buyers agent to verify all information to be accurate. The tax records do not reflect the new dimensions of the lots. A copy of the new survey is in the photos. Do Not enter the home. Property sold AS-IS
Listing Company: American Heritage Inc. |
$2,400.00/sqft.
List Price $2,375.00/sqft.
| ||||||
|
Additional Details & Features
| |||||||
|
| ||||||||
|
School Information Charlotte Park Elementary | H. G. Hill Middle | James Lawson High School | ||||||||
|
| ||||||||
| ||||||||
|
| ||||||||
|
| ||||||||
|
|
|
| ||||||

|
5620 Obrien Ave in N/A, Nashville, TN 37209 MLS#2777246 - Davidson County | Return to SOLD Results |